2d CAD house plan drawings details in autocad file
Description
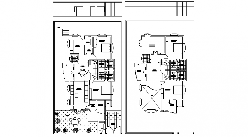
2d CAD house plan drawings details in autocad file that shows house floor plan drawings detaisl with furniture layout detaisl in house and floor level details. Room interior dimension details with room details of drawings room bedroom area kitchen and dining area along with saniatry toilet and bathroom details also included in drawings.
Uploaded by:
Eiz
Luna

